
PLANIMETRÍA Y VISUALIZACIÓN.
SEÑALÉTICA EN VÍAS Y EDIFICACIONES.
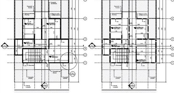
DISEÑO ARQUITECTÓNICO, ESTRUCTURAL Y DE REDES
Diseñamos y planificamos sus espacios comerciales y residenciales para un mejor confort, antes de iniciar un proyecto debe planificar para evitar imprevistos y pérdidas de dinero.
-
Diseño arquitectónico. (incluye planos)
-
Diseño de ingenierías y cálculo estructural. (incluye planos)
-
Diseño estructural
-
Diseño eléctrico
-
Diseño hidrosanitario
-
Diseño de redes
-
Voz y datos.
-
Tv.
-
Domótica.
-
CCTV.
-
-
Trámites ante curaduría.
-
Trámite para legalización de predios.
-
Cantidades de obra. ( materiales)
-
Proyección de obra. ( tiempo de proyecto)
-
Presupuesto de obra. (costos materiales y mano de obra)
PLANIMETRÍA Y VISUALIZACIÓN
-
Levantamiento arquitectónico.
-
Digitalización y edición de planos.
Apoyamos profesionales de la construcción con sus proyectos de:
-
Diseño arquitectónico, estructural y de redes
-
Levantamiento y dibujo de planos
-
Dibujo de planos de fabricación y montaje para estructura metalica
-
Planos de rutas de evacuación y señalética
SEÑALETICA EN VÍAS Y EDIFICACIONES
Si necesita identificar, regular y facilitar el acceso o tránsito en una superficie o espacio interior o exterior, sepa que estamos especializados en la creación de símbolos gráficos o señalética


























